
価格表

1号地 間取り

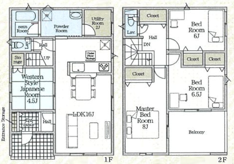
2号地 間取り

洗面化粧台(イメージ)

トイレ(イメージ)

和室(イメージ)

LDK(イメージ)

キッチン(イメージ)

キッチン(イメージ)2

バルコニー(イメージ)
物件情報更新日:2025年11月30日
『仲介手数料無料』 物件!人気の希少地、奈良市押熊町に限定2区画!
奈良市押熊町第3 新築一戸建て 限定2区画!
奈良市押熊町
| 所在地 | 土地面積/坪数 | 総区画数 | 建物面積 | 建築年月 | 価格 |
|---|---|---|---|---|---|
| 奈良市押熊町 | 218.80㎡~/66.18坪~ | 2 | 98.81㎡~ | R8.2完成予定 | 2,880万円~ |
| 交通 | 近鉄京都線『高の原』駅 バス18分『押熊北出口』停 徒歩1分! 近鉄奈良線『学園前』駅 バス16分『押熊北出口』停 徒歩1分! |
学校区域 | - |
|---|
| 外観写真 | 区画図面 |
|---|---|
|
|




















| 物件No. | AN-NO3 | 物件種別 | 新築戸建 | 土地権利 | 所有権 |
|---|---|---|---|---|---|
| 地目 | 宅地 | 用途地域 | 第1種低層住居専用地域 | 都市計画 | 市街化区域 |
| 建ぺい率/容積率 | 40%/60% | 建築条件 | - | ||
| 構造 | 木造軸組構法(在来工法) | 階建て | 2階建て | 間取り詳細 | 洋3・和1・LDK1 |
| 設備 | 都市ガス/関西電力/公営水道/公共下水/ ペアガラス/床下収納庫/ 浴室暖房/温水洗浄便座/ -/ 駐車場有/ モニタ付インターホン/ /その他の設備:玄関灯(人感センサー機能付き) | ||||
| 引渡 | R8.2予定 | 現況 | 建築中 | 取引形態 | 仲介 |
| 備考 | 【フラット35】S利用可 住宅瑕疵担保保証金供託物件 | ||||
※各種情報と現況に差異がある場合は、現況優先となります。