
価格表

1号地間取り

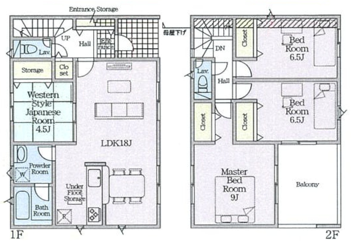
2号地間取り

キッチン イメージ

浴室イメージ

洗面化粧台(イメージ)

トイレ(イメージ)

玄関収納(イメージ)
物件情報更新日:2026年4月17日
『仲介手数料無料』 物件!人気の近鉄『大和高田』駅徒歩圏内の生活至便な住宅地に限定2区画!2WAY利用可!防犯カメラ付き!大幅値下げしました!
大和高田市大中第1 新築一戸建て 限定2区画!
大和高田市大中
| 所在地 | 土地面積/坪数 | 総区画数 | 建物面積 | 建築年月 | 価格 |
|---|---|---|---|---|---|
| 大和高田市大中 | 130.48㎡~/39.47坪~ | 2 | 95.57㎡~ | R8.3 | 2,480万円~ |
| 交通 | JR和歌山線『高田』駅 徒歩12分! 近鉄大阪線『大和高田』駅 徒歩15分! |
学校区域 | 高田小学校 ・高田中学校 |
|---|
| 外観写真 | 区画図面 |
|---|---|
|
|
















| 物件No. | AN-YTO1 | 物件種別 | 新築戸建 | 土地権利 | 所有権 |
|---|---|---|---|---|---|
| 地目 | 宅地 | 用途地域 | 第1種住居地域 | 都市計画 | 市街化区域 |
| 建ぺい率/容積率 | 60%/200% | 建築条件 | - | ||
| 構造 | 木造軸組構法(在来工法) | 階建て | 2階建て | 間取り詳細 | 洋3・和1・LDK1 |
| 設備 | 都市ガス/関西電力/公営水道/公共下水/ ペアガラス/床下収納庫/ 浴室暖房/温水洗浄便座/ -/ 駐車場有/ モニタ付インターホン/ /その他の設備:玄関扉(スマートコントロールキー搭載) | ||||
| 引渡 | 即可 | 現況 | 完成済 | 取引形態 | 仲介 |
| 備考 | 【フラット35】S利用可 住宅瑕疵担保保証金供託物件 | ||||
※各種情報と現況に差異がある場合は、現況優先となります。